Kabel Helpdesk Forum

Das Kabel Forum - VON KUNDEN FÜR KUNDEN
Kabel Helpdesk Kabel Helpdesk besuchen
Vodafone-Kabel-Forum Vodafone-Kabel-Forum
Aktuelle Zeit: Di 11. Nov 2025, 23:48

Alle Zeiten sind UTC + 1 Stunde [ Sommerzeit ]




Ein neues Thema erstellen Auf das Thema antworten  [ 9 Beiträge ] 
Autor Nachricht
 Betreff des Beitrags: Wie TV und PC verkabeln?
BeitragVerfasst: Do 1. Jan 2015, 20:55 
Offline
Newbee
Newbee

Registriert: Do 1. Jan 2015, 20:15
Beiträge: 14
Geschlecht:
Bundesland: Hessen
Hallo und frohes Neues.

Im Moment nutze ich Unity für TV und Telekom für Telefone/PC`s.
Ich überlege mir das 3play Plus 120 zuzulegen.
Dazu habe ich aber Fragen bezüglich der Verkabelung und ob es ohne großen Aufwand realisierbar wäre.
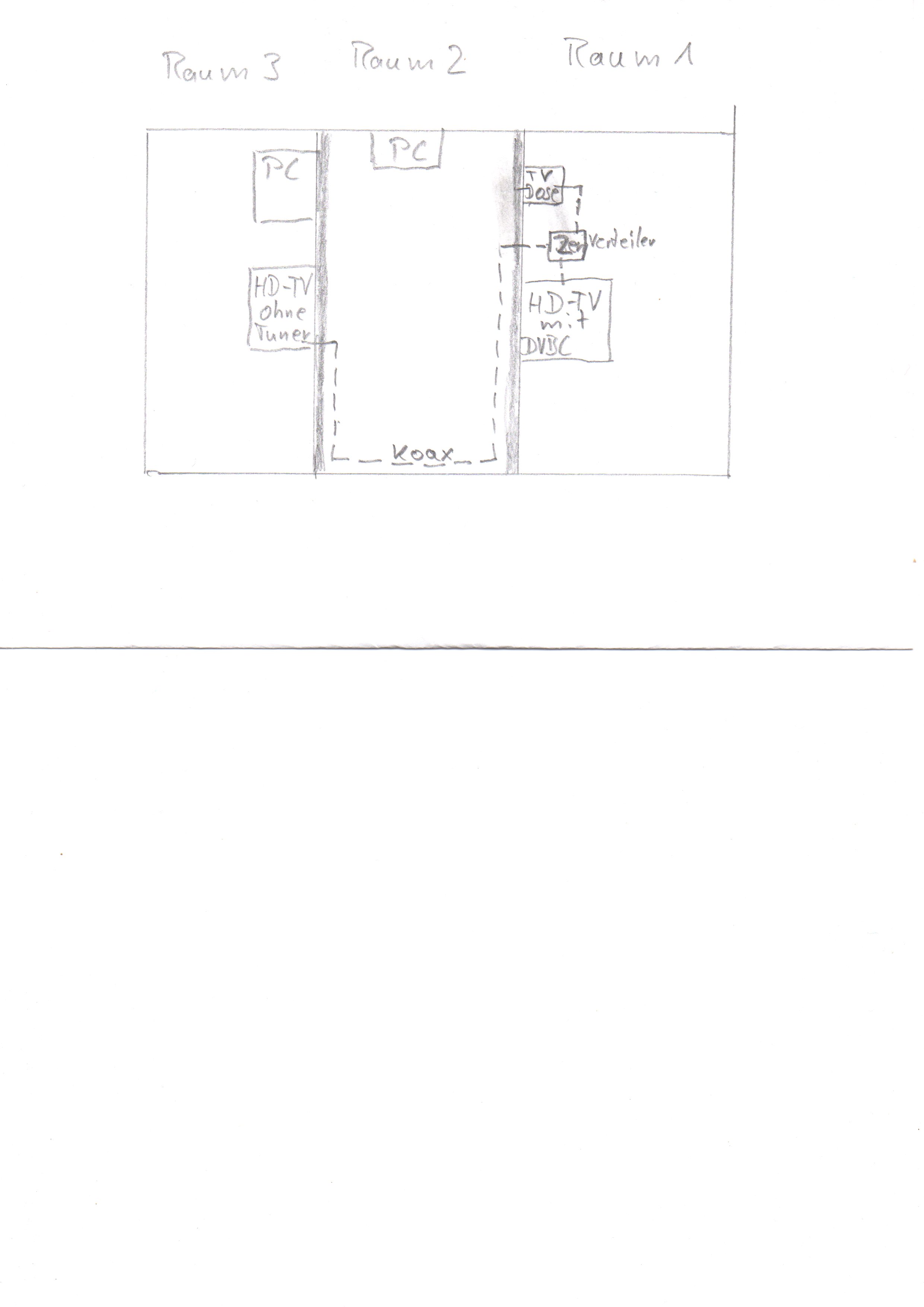
In Raum 1 befindet sich die TV-Dose, an der ein 2-fach Verteiler hängt und Koax einmal zum TV mit DVB-C-Tuner (Raum1)geht und einmal in Raum 3 zu einem TV mit analogen Tuner geht (direkt ohne Dose).
Es wäre nicht tragisch, wenn in Raum 3 das Bild so schlecht wie bisher bleibt, wenn es nicht anders machbar ist.
Der "Haupt-TV" befindet sich in Raum1 (Sony KDL48W605B).
# Muß man da zwangsweise einen Receiver, oder die Horizon-Box haben, oder kann es so wie bisher bleiben?#

Die PC`s laufen im Moment alle über WLan, wobei ich davon garantiert kein Fan bin.
Es wäre kein Problem, von Raum1 zu Raum 2 durchzubohren, wenn nötig.
Problematisch ist es zu Raum 3.
Da aber in Raum 3 ein Koax liegt, dachte ich an ein 2. Kabelmodem.
#Würde das so klappen, oder hätte ich da eine andere Möglichkeit?#

Und wie würde das mit dem Telefon klappen?
Angeschlossen ist jetzt ein Gigaset am Speedport-Router und ein Gigaset-Hörer per DECT am Router angemeldet.
So können 2 Telefone verschieden klingeln und haben auch verschiedene Nummern.

Man kann sagen, dass Raum 3: Tele/PC/TV braucht, Raum 2: nur PC und Raum 1: nur TV und Tele.
2x PC
2x TV (nicht unbedingt beide HD)
2x Telefon mit 2 Rufnummern

Muß man dann noch Optionen hinzubuchen, oder ist das realisierbar mit 3play Plus 120?

Ich danke euch für Mühen und Antworten.


Dateianhänge:
Antenne.jpg
Antenne.jpg [ 249.91 KiB | 5230-mal betrachtet ]
Nach oben
 Profil  
Mit Zitat antworten  
 Betreff des Beitrags: Re: Wie TV und PC verkabeln?
BeitragVerfasst: Do 1. Jan 2015, 21:34 
Offline
Kabelspezialist
Kabelspezialist

Registriert: Di 12. Nov 2013, 15:50
Beiträge: 389
Geschlecht:
Bundesland: Baden-Württemberg
heinzi69 hat geschrieben:
Da aber in Raum 3 ein Koax liegt, dachte ich an ein 2. Kabelmodem.

2 Kabelmodem gibt's nur mit 2 Verträgen, das hast bestimmt nicht vor.
Zitat:
2x Telefon mit 2 Rufnummern

Das wäre dann die Telefon-Komfort-Option (2 Leitungen, 3 Rufnummern, Fritzbox 6360).
An die FB lassen sich DECT-Telefone direkt anmelden.

_________________
2play PLUS 120/ISDN * FB6360 (FRITZ!OS 06.04) * Auerswald 5020 VoIP * ASUS RT-N66U als AP
Bild Bild


Nach oben
 Profil  
Mit Zitat antworten  
 Betreff des Beitrags: Re: Wie TV und PC verkabeln?
BeitragVerfasst: Do 1. Jan 2015, 22:09 
Offline
Newbee
Newbee

Registriert: Do 1. Jan 2015, 20:15
Beiträge: 14
Geschlecht:
Bundesland: Hessen
Richtig, dass habe ich nicht vor.

Muß man dann die Fritzbox auch nehmen, oder ist dass statt einem "billigen" Modem?

Ich habe noch eine Fritzbox da, aber leider nicht für Kabel.

Das Vorhaben ist ja, weil schon Koax liegt, keine weiteren Leitungen legen zu müssen.
Ok, mit der Fritzbox dahinterschalten geht ja, aber hab ja dann wieder WLan.

Ich könnte auch das C-Modem in Raum 3 stellen, aber dann muß ich ja wieder ein Koax, oder HDMI zu Raum 1 haben.
Von Raum 3 zu Raum 2 bohren, wäre ebenfalls kein Problem.
Bedeutet also, entweder ein Koax von Raum 3 (obwohl schon eins liegt) zu Raum 1 legen (was seehr schlecht ist),
oder ein Netzwerkkabel von Raum 1 zu Raum 3 legen (was ebenfalls seehr schlecht ist). Dabei habe ich dann noch die schlechte Qualität in Raum 3 (kann ich mit leben, ist aber schade).

Verdammt, gibt es da keine andere Möglichkeit?

Möchte auch vermeiden, dass in Raum 1 noch Geräte rumstehen.
Klappt das den mit dem TV, oder ist der z.B. Horizon oder ein Receiver vonnöten?


Nach oben
 Profil  
Mit Zitat antworten  
 Betreff des Beitrags: Re: Wie TV und PC verkabeln?
BeitragVerfasst: Do 1. Jan 2015, 23:11 
Offline
Kabelspezialist
Kabelspezialist

Registriert: Di 12. Nov 2013, 15:50
Beiträge: 389
Geschlecht:
Bundesland: Baden-Württemberg
Es gibt keine reinen Kabel-Modem mehr oder zumindest kommt man an diese fast nicht mehr ran.
Es gibt das TC7200 oder UBEE EVW3226 und eben in Verbindung mit der Telefon-Komfort-Option die FB6360. Das sind alles Modem-Router-Kombinationen. Ein weiterer Router wird nicht benötigt bzw. ist eher kontraproduktiv.

Ich würde die MMD in Raum 3 installieren lassen, dort die Fritzbox hin, wenn du auf WLAN verzichten willst ein LAN-Kabel von Raum 3 nach Raum 2, Telefone per DECT an die FB anmelden und in Raum 1 ist der Receiver für Pay-TV. In Raum 3 kann dann analog TV geschaut werden.

EDIT
Ich seh grad "Bundesland: Nordrhein-Westfalen", da gibt es m.W. das UBEE nicht. Also nur TC oder FB.

_________________
2play PLUS 120/ISDN * FB6360 (FRITZ!OS 06.04) * Auerswald 5020 VoIP * ASUS RT-N66U als AP
Bild Bild


Nach oben
 Profil  
Mit Zitat antworten  
 Betreff des Beitrags: Re: Wie TV und PC verkabeln?
BeitragVerfasst: Fr 2. Jan 2015, 00:33 
Offline
Newbee
Newbee

Registriert: Do 1. Jan 2015, 20:15
Beiträge: 14
Geschlecht:
Bundesland: Hessen
MMD in Raum 3 wäre ja in Ordnung, aber die Zuleitung vom Kabel-TV ist ja in Raum 1, von daher müsste ja dann noch ein Koax von Raum 3 zu Raum 1 gelegt werden.

Ist denn ein Receiver notwendig, obwohl der TV ein DVB-C Tuner drin hat?


Nach oben
 Profil  
Mit Zitat antworten  
 Betreff des Beitrags: Re: Wie TV und PC verkabeln?
BeitragVerfasst: Fr 2. Jan 2015, 11:40 
Offline
Kabelspezialist
Kabelspezialist

Registriert: Di 12. Nov 2013, 15:50
Beiträge: 389
Geschlecht:
Bundesland: Baden-Württemberg
Ich dachte von Raum 1 in Raum 3 liegt schon ein Koax-Kabel. Wenn man dies verwenden kann, wird der Techniker es nur "richtig" anklemmen.

Bei 3play 120 ist der Horizon HD Receiver für Pay-TV dabei, die Free-TV-Sender kannst auch ohne Receiver nur mit DVB-C-Tuner anschauen.

_________________
2play PLUS 120/ISDN * FB6360 (FRITZ!OS 06.04) * Auerswald 5020 VoIP * ASUS RT-N66U als AP
Bild Bild


Nach oben
 Profil  
Mit Zitat antworten  
 Betreff des Beitrags: Re: Wie TV und PC verkabeln?
BeitragVerfasst: Fr 2. Jan 2015, 13:07 
Offline
Newbee
Newbee

Registriert: Do 1. Jan 2015, 20:15
Beiträge: 14
Geschlecht:
Bundesland: Hessen
Richtig, da liegt Koax, aber wie soll dann der TV in Raum 1 angeschlossen werden?
Man müsste ja die alte Dose (Raum 1) entfernen, da ein Verbinder drauf und in Raum 3 die neue Dose anklemmen.
Oder meinst du die alte Dose bestehen lassen, T-Stück, TV dran und trotzdem die neue Dose in Raum 3 anklemmen?
Könnte man nur die Dose in Raum 1 tauschen, TV direkt an der neuen Dose dran und in Raum 3 den Receiver anschliessen?

Schonmal gut, dass man den Receiver nicht unbedingt braucht.


Nach oben
 Profil  
Mit Zitat antworten  
 Betreff des Beitrags: Re: Wie TV und PC verkabeln?
BeitragVerfasst: Fr 2. Jan 2015, 13:16 
Offline
Kabelspezialist
Kabelspezialist

Registriert: Di 12. Nov 2013, 15:50
Beiträge: 389
Geschlecht:
Bundesland: Baden-Württemberg
Wenn es möglich ist kommt in Raum 1 eine Durchgangsdose und in Raum 3 ebenso, nur mit Abschlusswiderstand.

Aber das kann dir letztendlich nur der Techniker, der bei dir die Installation vornimmt, vor Ort sagen.

_________________
2play PLUS 120/ISDN * FB6360 (FRITZ!OS 06.04) * Auerswald 5020 VoIP * ASUS RT-N66U als AP
Bild Bild


Nach oben
 Profil  
Mit Zitat antworten  
 Betreff des Beitrags: Re: Wie TV und PC verkabeln?
BeitragVerfasst: Fr 2. Jan 2015, 13:38 
Offline
Newbee
Newbee

Registriert: Do 1. Jan 2015, 20:15
Beiträge: 14
Geschlecht:
Bundesland: Hessen
Ok, dann bin ich schonmal ein bisschen im Bilde.
Für weitere Tipps bin ich natürlich offen.

Danke dir vielmals.


Nach oben
 Profil  
Mit Zitat antworten  
Beiträge der letzten Zeit anzeigen:  Sortiere nach  
Ein neues Thema erstellen Auf das Thema antworten  [ 9 Beiträge ] 

Alle Zeiten sind UTC + 1 Stunde [ Sommerzeit ]


Wer ist online?

Mitglieder in diesem Forum: 0 Mitglieder und 4 Gäste


Du darfst keine neuen Themen in diesem Forum erstellen.
Du darfst keine Antworten zu Themen in diesem Forum erstellen.
Du darfst deine Beiträge in diesem Forum nicht ändern.
Du darfst deine Beiträge in diesem Forum nicht löschen.
Du darfst keine Dateianhänge in diesem Forum erstellen.

Suche nach:
Gehe zu:  
Impressum

Datenschutz EU-DSGVO

Powered by phpBB® Forum Software © phpBB Group
Deutsche Übersetzung durch phpBB.de